周边传动刮泥机
周边传动刮泥机功效基本同于中心传动刮泥机,主要用于大型(指水量大于600m3/h,池径大于20m)污水厂的初沉及二沉池中,刮集池底沉泥(比重一般小于1.2且不易板结),一般上部设浮渣(或浮沫)刮集系统,即具有刮沉浮功能,工艺一般为中心进水,周边出水,中心排泥。
周边传动刮泥机工作原理
驱动装置带动工作桥沿池平面旋转,工作桥带动刮板将泥刮集至吸泥口,利用水位差将池底污泥吸入排泥槽,排泥槽中的污泥流入中心泥缸中,排出池外;也可通过虹吸作用将污泥从排泥槽吸入中心泥缸中将泥排出。同时池中浮渣由浮渣刮板收集至排渣斗排出池外。
周边传动刮泥机产品特点
1、采用铰支式刮臂起到过载保护作用,且有效降低运行成本。
2、工作桥正常采用桁架梁,重量轻,刚度好,且桥长可视工艺要求确定。
3、对数螺旋型刮泥板,且底部设有滚轮,有效防止卡阻。
4、整机刚性好,刮泥扭矩大且可调定。
5、功能可扩展为带自动提耙,能实现分层刮集。
6、多次结构改进,处理高效。
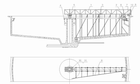
周边传动刮泥机主要结构
.jpg)
1、大梁2、浮渣小刮板总成3、刮集装置总成 4、稳流简总成5、中心支座6、漏斗、堰板、挡板总成 7、星摆减速机 8、浮渣池刮板总成 9、端侧爬梯 10、花纹脚踏板 11.网格脚踏板 12、行走端梁总成
周边虹吸式传动刮泥机主要结构
.jpg)
周边传动刮泥机主要技术参数和安装尺寸表
.jpg)
周边传动刮泥机订货须知
1、需要撇渣装置、出流堰板、玻璃钢出水槽时,请注明。
2、注明主梁及水下部件的材质(碳钢、不锈钢、铝合金),防腐有特殊要求时请注明。
3、注明全桥式或半桥式,需要轴装式或进口减速机,请注明。
4、本机行走轮及从动轮为铁心胶轮,若需要钢轮行走时,请注明,并铺设钢轨。
5、订货时,请提供池子的土建图(注明池径、池深、池底坡度、出水槽断面等)。